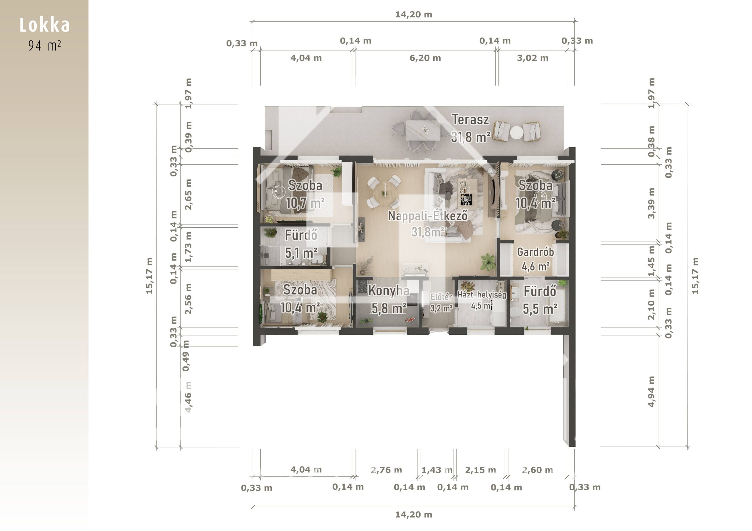
Lokka – LSH Készház típusterv